Produktdatabase
Vinduer og dører
Nordic Edge IN
Nordic Edge UT
Natre Klassisk tre/alu
Natre Klassisk tre/tre
Natre HSD
Nedlastingssenter
System-snittegninger
BIM-objekter
Innbygningstegninger
Montering og justering
FDV-beskrivelse
Ytelseserklæringer (DoP)
Produktspesifikke EPD-er
Anbudsbeskrivelser
Resurssenter
Login (For ansatte)
Produkt database
Gå til Natre.no
Natre Produktdatabase
Nedlastingssenter
System-snittegninger
Nordic Edge UT utadslående vinduer og balkongdører
Nedlastingssenter
Nordic Edge UT utadslående vinduer og balkongdører
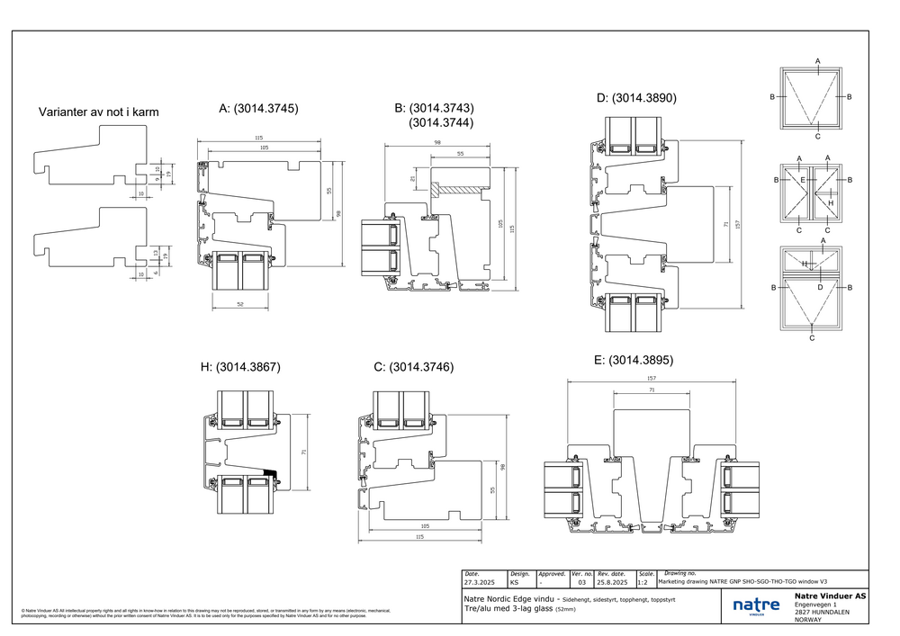
System-snittegninger, Nordic Edge UT
Her finner du snittegninger for systemet Nordic Edge UT.
Snittegningene kan lastes ned som DWG- og PDF-filer og kan fritt benyttes til prosjektering med Natre.
Karmer, poster, sprosser, fyllinger
Hjørneløsninger
Sammenstillinger
Her finner du snittegninger som viser hvordan man monterer Nordic Edge UT med andre Natre-systemer.
Snittegningene kan lastes ned som DWG- og PDF-filer og kan fritt benyttes til prosjektering med Natre.
Nordic Edge UT - Nordic Edge UT
Nordic Edge IN - Nordic Edge UT