Produktdatabase
Vinduer og dører
Nordic Edge IN
Nordic Edge UT
Natre Klassisk tre/alu
Natre Klassisk tre/tre
Natre HSD
Nedlastingssenter
System-snittegninger
BIM-objekter
Innbygningstegninger
Montering og justering
FDV-beskrivelse
Ytelseserklæringer (DoP)
Produktspesifikke EPD-er
Anbudsbeskrivelser
Resurssenter
Login (For ansatte)
Produkt database
Gå til Natre.no
Natre Produktdatabase
Nedlastingssenter
System-snittegninger
Natre Klassisk tre/tre vinduer og dører
Nedlastingssenter
Natre Klassisk tre/tre vinduer og dører
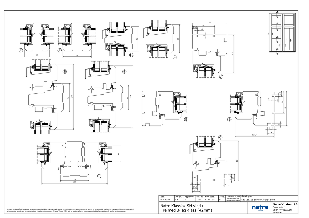
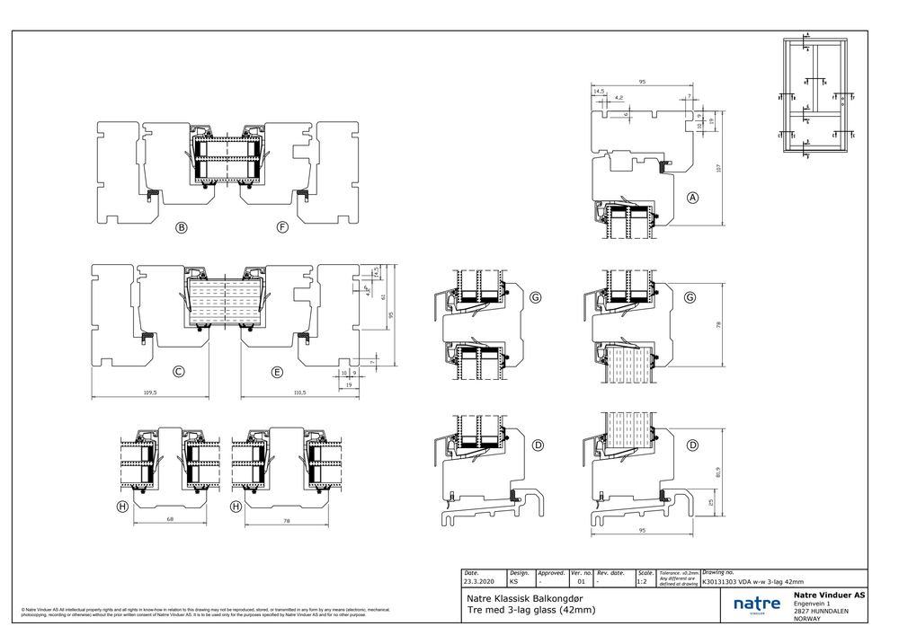
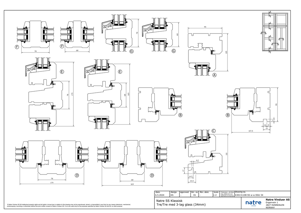
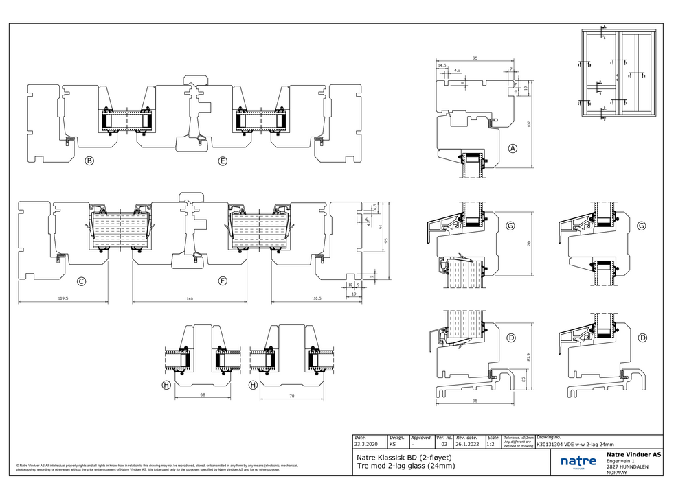
System-snittegninger, Natre Klassisk tre/tre
Her finner du snittegninger for systemet Natre Klassisk tre/alu
Snittegningene kan lastes ned som DWG- og PDF-filer og kan fritt benyttes til prosjektering med Natre.
Natre Klassisk Tre Toppsving/Topphengslet
Natre Klassisk Tre Sidesving
Natre Klassisk Tre Sidehengslet
Natre Klassisk Tre Fastkarm
Natre Klassisk Tre 1-fløys Balkongdør
Natre Klassisk Tre 2-fløys Balkongdør