Produktdatabase
Vinduer og dører
Nordic Edge IN
Nordic Edge UT
Natre Klassisk tre/alu
Natre Klassisk tre/tre
Natre HSD
Nedlastingssenter
System-snittegninger
BIM-objekter
Innbygningstegninger
Montering og justering
FDV-beskrivelse
Ytelseserklæringer (DoP)
Produktspesifikke EPD-er
Anbudsbeskrivelser
Resurssenter
Login (For ansatte)
Produkt database
Gå til Natre.no
Natre Produktdatabase
Vinduer og dører
Nordic Edge IN
Tegninger
Vinduer og dører
Nordic Edge IN
Systeminformasjon
Åpnefunksjoner
Vridere og tilbehør
Funksjonsglass
Fyllinger
Tegninger
Test og dokumentasjon
Veiledninger
Tegninger
System-snittegninger, Nordic Edge IN
Her finner du snittegninger for systemet Nordic Edge IN.
Snittegningene kan lastes ned som DWG- og PDF-filer og kan fritt benyttes til prosjektering med Natre.
Karmer, poster, sprosser, paneler
Sammenstillinger
Her finner du snittegninger som viser hvordan man monterer Nordic Edge IN med andre Natre-systemer.
Snittegningene kan lastes ned som DWG- og PDF-filer og kan fritt benyttes til prosjektering med Natre.
Nordic Edge IN - Nordic Edge IN
Nordic Edge IN - Nordic Edge UT
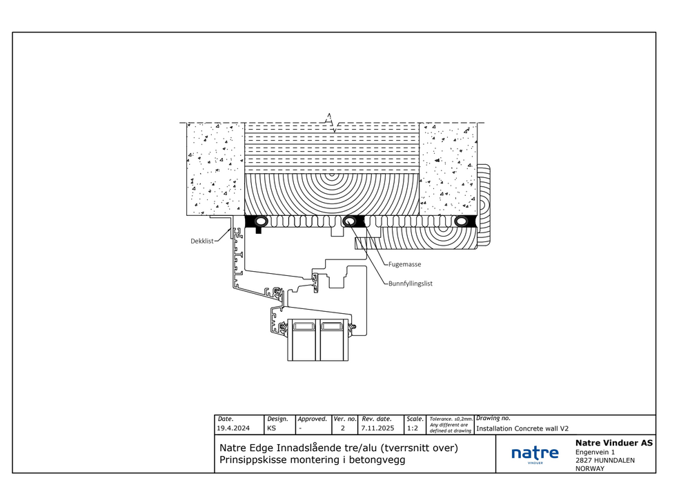
Innbygningseksempler Nordic Edge IN
Her er eksempler på montering av elementer til Nordic Edge IN.
Snittegningene kan lastes ned som DWG- og PDF-filer.
Alle tegningene kan fritt benyttes for planlegging med Natre vinduer og dører.
Innbygging av Nordic Edge INadslående i betongelementer
Innbygging av Nordic Edge INadslående i bindingsverk
Installasjon og sammenkoblingstegninger - Nordic Edge brannvinduer